Geberit ProPlanner Planning software for plumbers
Simple, precise and fast planning
Geberit ProPlanner is specially tailored to the needs of plumbers and plumbing companies who plan sanitary installations independently.
The planning modules cover various sanitary technologies, from the planning of installation systems to pipe dimensioning and hydraulic calculations.
When you install Geberit ProPlanner – observing the system requirements – and register for the first time, you will receive a licence key which allows you to use the Installation Systems module.
Software training is required to use the modules for the schematic planning of piping systems, detailed planning 3D, roof drainage and waste water prefabrication. Once you have taken part, you will receive a licence. Contact us if you are interested in this training.

Why choose Geberit ProPlanner?
Straightforward planning
The creation of schematic drawings provides you with complete pipe dimensioning and a material list for your project.
Precise calculations
Reliable calculations are made automatically on the basis of Geberit expertise.
Easy to use
The user interface is intuitive and easy to learn.
Quick creation
Drawings can be created quickly and reports generated at a mouse click.
Available planning modules
Installation Systems
The module enables quick, simple and precise planning and modelling of installation systems.
Functions:
- Planning of installation systems
- Calculation according to Geberit guidelines and regulations
- Latest updates to regulations and integrated Geberit products
- Automatic output of material, offer and cut lists
- Automatic output of floor plan, front view and installation drawings
- Export function for detailed 3D planning
- CAD export interface (Autodesk® RealDWG®)

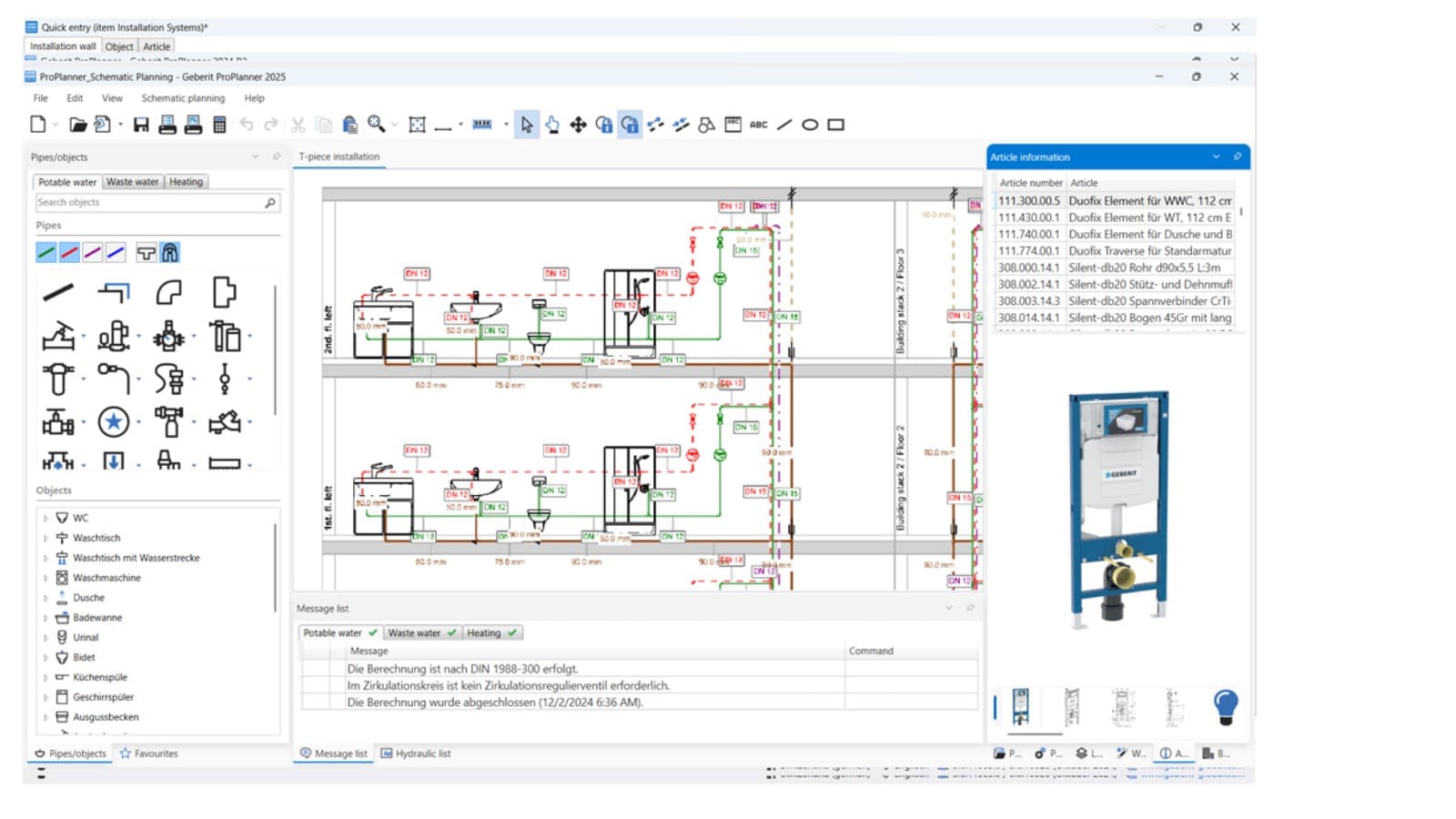
Schematic planning
The module enables the planning of piping systems based on detailed drawings.
Functions:
- Planning of drinking water and drainage systems
- Calculation according to country-specific standards
- Latest updates to regulations and integrated Geberit products
- Automatic output of material, hydraulic and offer lists
- Automatic output of schematic drawings
- CAD export interface (Autodesk® RealDWG®)

Detailed 3D planning
The module enables comprehensive 3D modelling of the sanitary appliances. The software ensures a correct design.
Functions:
- Planning of installation and drainage systems
- Planning possible in floor plan, front view and 3D
- Calculation according to Geberit guidelines and regulations
- Latest regulations, standards and integrated Geberit products
- Automatic output of material, offer and cut lists
- Automatic output of floor plan, front view, 3D and installation drawings
- CAD import and export (Autodesk® RealDWG®)

Roof drainage with Geberit Pluvia
The module enables reliable planning of pipe dimensioning for roof drainage and thus optimised hydraulics.
Functions:
- Isometric planning of the Geberit Pluvia roof drainage system
- Calculation according to country-specific standards or Geberit regulations
- Latest regulations, standards and integrated Geberit products
- Automatic output of material, hydraulic and offer lists
- Automatic output of isometric drawings
- CAD import and export interfaces (Autodesk® RealDWG®)

Prefabrication of drainage systems
The module enables detailed planning and 3D modelling of pipes and fittings for drainage systems.
Functions:
- Planning of drainage systems
- Planning possible in floor plan, front view and 3D
- Automatic output of material lists and cut lists for prefabrication of pipes
- Automatic output of floor plan, front view, 3D and installation drawings
- CAD import and export interface (Autodesk® RealDWG®)

Latest updates of Geberit ProPlanner
Geberit ProPlanner is being continuously improved and expanded with new functions. Twice a year, in April and October, we release a new version of the software.
Find out about the latest update:

System requirements
Please check the necessary system requirements before downloading the planning software:
| Minimum | Recommended | |
|---|---|---|
| Processor | 1 GHz | 2.5 GHz |
| RAM | 4 GB | 16 GB |
| Storage space | 4 GB free storage space | 6 GB free storage space, SSD |
| Graphics card | Integrated graphics | Dedicated graphics card |
| Display | 1280 x 1024 | 1920 x 1080 |
| Operating system | Windows 64-bit desktop version supported by Microsoft | Latest Windows 64-bit desktop version |
| Online services | Internet connection Email address | Internet connection Email address |
Training courses and manual
Read our training manual to familiarise yourself with the functions of Geberit ProPlanner.
- Download our training manuals here.
- In order to use the Geberit ProPlanner modules even more efficiently, we offer special software seminars and individual training courses.
- Register for a training course.
Frequently asked questions about Geberit ProPlanner
Can I export reports and drawings from Geberit ProPlanner?
Yes, the software enables the export of detailed reports, material lists and drawings in various formats for documentation and dissemination.
Does Geberit ProPlanner contain a database of Geberit products?
Yes. Geberit ProPlanner offers access to an up-to-date and comprehensive database of Geberit products including technical specifications and installation details.
Is Geberit ProPlanner also suitable for large projects?
Yes. The software has been developed so that sanitary projects of all sizes can be created – from smaller residential projects to large commercial construction projects.
Additional tools for sanitary professionals

BIM
All BIM tools from Geberit are combined in this central application for professionals. Many helpful functions simplify the planning process.

Geberit sound insulation competence tool
Map your specific constructional situation in just a few steps and quickly find the right solution for your sound insulation requirements.

Geberit Industrial Application Tool
This tool supports you in selecting the appropriate piping system for standard industrial applications, taking into account the relevant local regulations.